


Благодаря технологии GROHE QuickFix®, вы установите инсталляционную систему в мгновение ока, будь это монтаж перед стеной или в гипсокартонную перегородку.
Вам не понадобится никаких инструментов для подключения водоснабжения к инсталляции и ревизионного окна бачка. Монтажные уголки (3855800M) для установки инсталляции к стене а также звукоизоляционная прокладка (37131000) в комплекте.
Стальной каркас рамы инсталляции GROHE Rapid SL сертифицирован при нагрузке свыше 400 кг. Инсталляционная система для подвесного унитаза скрытого монтажа обеспечивает оптимальный уровень гигиены и простоту уборки ванной комнаты.
Созданные с применением технологии GROHE Whisper® для повышенного уровня шумоизоляции системы инсталляции серии Rapid SL предоставляют оптимальный уровень защищенности от шума.
Благодаря технологии двойного смыва GROHE EcoJoy®, водопотребление инсталляционных систем Rapid SL может быть снижено на 50%. Доступно для заказа много вариантов смывных панелей, чтобы соответствовать стилю вашей ванной комнаты.
Назначение изделия: для унитаза
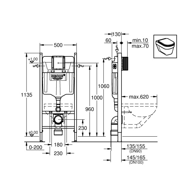
Монтажная высота: 1,13 м
Монтажная ширина: 50 см
Совместим с любым подвесным унитазом: Да
Панель смыва в комплекте: Нет
Объем смывного бачка, л: 9 л
Рекомендованное минимальное давление (бар): 0,5 бар
Максимальное давление, бар: 5 бар
Дизайн: Rapid SL
Регулировка продолжительности смыва: Да
Звукоизоляцонная панель: Есть
Изоляция от конденсационной влаги: Да
для настенного монтажа или обшитых стен
стальная рама с порошковым покрытием, самонесущая
для сухой облицовки
с фиксированными соединениями
быстрая регулировка, блокировка
крепежный материал
2 крепежных болта для унитаза
крепежное устройство для керамики
расстояние крепежных болтов 180/230 мм
выходной изгиб D 90 мм
регулировка глубины
редуктор D 90 на 110 мм
входной и выходной соединительный набор
смывной бак GD 2, 6 - 9 л
регулировка на заводе 6 л и 3 л
пневматический выпускной клапан, предлагающий 3 режима
работа: двойная промывка или старт_стоп или однократная промывка
водоснабжение слева либо справа либо сзади или сверху
низкий уровень шума (группа I соответствует немецкой спецификации шума)
изолированный от конденсации
полдюймовые подводы водоснабжения, включая интегрированные угловой клапан и гибкий шланг
На нашем сайте Вы так же можете купить смеситель напольный, дополнительно можно приобрести смеситель для умывальника дешевый, система скрытого монтажа для душа, накладные раковины на столешницу и держатель для душа купить, приятных покупок!
Нет отзывов о данном товаре.
Нет отзывов о данном товаре, станьте первым, оставьте свой отзыв.
Нет вопросов о данном товаре, станьте первым и задайте свой вопрос.